Beschrijving in het helpdocument van TS/Verbindingen:
Dialoogvenster: “Krachten – Krachten uiterste grenstoestand”
Als een verbinding een console bevat kan men aangeven of de momentcapaciteit Mc moet worden gecontroleerd.
Ten opzichte van het moment M, welke het moment op de kruising van de hartlijnen van de aansluitende profielen is, is Mc het moment op de plaats waar de console begint. Deze is meestal kleiner dan M.
Mc wordt gecontroleerd volgens de formules in rapport B-88-106. Het te controleren moment geeft men op achter Mcsd.
De controle op de momentcapaciteit kan worden uit gezet in onderstaande dialoogvenster:
Extra Toelichting
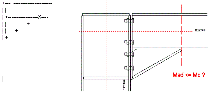
Mc is de momentcapaciteit t.p.v. de aansluiting van ligger op console (bij de console-aanzet dus, dat is punt X in onderstaande schets). Daar is de momentcapaciteit NIET altijd gelijk aan de liggercapaciteit, vanwege de plooikracht die uit de console op de ligger werkt en zo een reductie van de capaciteit KAN geven.
Staalspanningen toetst over de lengte van de staaf altijd met het (ongereduceerde) momentcapaciteit van de LIGGER. De momentcapaciteit Mc KAN lager zijn, en dient dan afzonderlijk via TS/Verbindingen te worden getoetst.

Momentcapaciteit Mc in Technosoft Verbindingen">

