Home Technosoft blog & nieuws over rekensoftware

Technosoft blog & nieuws over rekensoftware

"Kennisdeling door transparantie"

 

Alles over constructieve rekensoftware. Onderwerpen waar u graag over leest.

Technosoft
structural-engineering
Rekensoftware Nieuws

AxisVM X6 - Nieuwe versie

De nieuwe versie AxisVM X6. AxisVM heeft een nieuwe versie beschikbaar onder de naam AxisVM X6. Een versie met weer heel veel nieuwe...
Lees meer
Rekensoftware Nieuws

AxisVM - NEN 8700

Reken met AxisVM nu ook voor de bestaande bouw of verbouw. U als constructeur zal naast het ontwerpen van nieuwe gebouwen ook actief zijn op het...
Lees meer
Rekensoftware Nieuws

Nieuwe certificering staalmodules

Binnenkort ook gecertificeerde staalmodules Technosoft heeft zelfstandig het initiatief genomen om naast de beton-modulesnu ook de staal-modules te...
Lees meer
Rekensoftware Nieuws

EEM training 2020

Training ‘Eindige elementenmethode in de praktijk’ We hebben de heer Blaauwendraad na de succesvolle training van voorgaande jaren wederom bereid...
Lees meer
Rekensoftware Nieuws

Nieuwe licentiebeveiliging Technosoft

CodeMeter: onze nieuwe licentiebeveiliging. Wij gaan werken met CodeMeter, de beveiligingsoplossing van WiBU Systems. WIBU staat al jaren bekend als...
Lees meer
Rekensoftware Nieuws

Nieuwe release AxisVM X5 R3

Nog meer functionaliteit in AxisVM X5 R3! Vanaf medio februari 2020 is de nieuwe release 3 van AxisVM X5 beschikbaar gekomen, met een heleboel...
Lees meer
Rekensoftware Nieuws

NIEUW: Word Add-in

Het maken van rapporten gaat vanaf vandaag voor u veranderen! Technosoft heeft een nieuwe handige tool ontwikkeld voor het opmaken van de uitvoer in...
Lees meer
Rekensoftware Nieuws

AxisVM X5 - 3D FEM software van wereldklasse

Lees meer
Rekensoftware

Parametrisch ontwerpen

Parametrisch ontwerpen. De manier waarop gebouwen ontworpen worden is in de basis al heel lang hetzelfde. Veranderingen in de werkwijze van...
Lees meer
Rekensoftware Nieuws

EEM training 2019

Training ‘Eindige elementenmethode in de praktijk’ We hebben de heer Blaauwendraad na de succesvolle training van voorgaande jaren wederom bereid...
Lees meer
Rekensoftware

Horizontaal belaste palen

Waarom een nieuwe geïntegreerde oplossing?
Lees meer
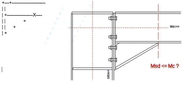
Rekensoftware Nieuws

Momentcapaciteit Mc in Technosoft Verbindingen

Beschrijving in het helpdocument van TS/Verbindingen:Dialoogvenster: “Krachten – Krachten uiterste grenstoestand”
Lees meer
Rekensoftware Nieuws

Downloaden Technosoft software gewijzigd

Op de nieuwe website van Technosoft is er geen Portal meer waar u kunt inloggen om de software te downloaden. Als vervanger van het Technosoft Portal...
Lees meer